18J621-3通風天窗圖集替代05J621-3圖集,中國建筑標準設計研究院和重慶麥克威參編的國家建筑標準設計圖集。包括弧線(折線)型(包括電動采光排煙天窗)和薄型兩大類共10種型號的通風天窗及通風帽的選用與安裝。下面重慶麥克威天窗小編簡單介紹下其中的18J621-3-5型通風采光天窗。
一、重慶18J621-3-5型通風采光天窗工程案例
18J621-3-5型開敞式通風采光天窗在重慶市場得到了廣泛運用,主要工程案例有:
1、重慶濰柴焊裝車間屋頂天窗,重慶麥克威同中國機械工業第四建設工程有限公司簽訂了重慶濰柴汽車焊裝車間異改項目屋頂天窗工程,成功開啟同中機四建的第二次友好合作。
2、重慶小康長壽變速器項目,重慶麥克威同業主方重慶小康汽車變速器有限公司的第二次合作了。在本次屋頂通風采光天窗項目中,業主方選用了麥克威的18J621-3-5型通風采光天窗,全長數百米。
3、中鐵建工屋頂通風采光天窗工程,在本次中鐵建工西南產業園項目中,選定了麥克威的18J621-3-5型3040N通風采光天窗(敞開式)共計829米,18J621-3-7型0651通風采光天窗(敞開式),共計1764米。
二、重慶18J621-3-5型通風采光天窗
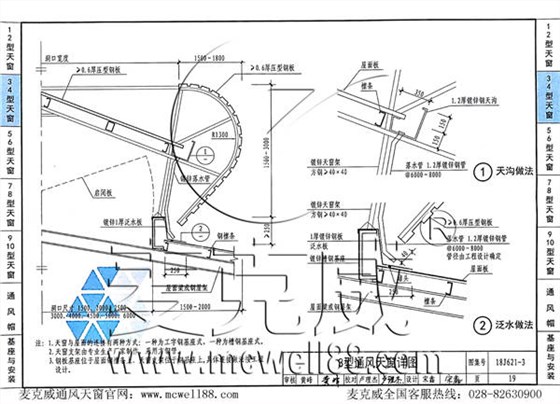
18J621-3-5型開敞式通風采光天窗安裝可以屋脊安裝或者順坡安裝,一般由天窗架、外圍護板(擋風板)、擋雨板、FRP采光板、排水溝槽、閥板、泛水板、啟閉機構等部分組成。閥板開關采用電動或手動控制,其骨架由型材焊接,防雨板采用彩色鋼板或玻璃纖維聚酯采光板(FRP)制作。流線型構造,體積較大,通風量較大。18J621-3-5型開敞式通風采光天窗,對應11CJ33《通風采光天窗》圖集的MCW4型天窗;18J621-3《通風天窗》圖集的5型通風采光天窗。
三、重慶18J621-3-5型通風采光天窗喉口大小
18J621-3-5型通風采光天窗喉口寬度:1500mm、2000mm、2500mm、3000mm、4000mm、4500mm、5000mm、6000mm等;
18J621-3-5型通風采光天窗喉口長度:3000*n、4000*n(用于壓型鋼板或者現澆混泥土屋面)、6000*n(用于預應力鋼筋混泥土屋面板屋面);
18J621-3-5型通風采光天窗天窗對應高度:1500mm、2000mm、2500mm、3000mm、4000mm、4500mm、5000mm、6000mm等;
重慶通風采光天窗本土廠家——麥克威是18J621-3《通風天窗》圖集參編單位,15年的研發推廣,使重慶麥克威具備了雄厚的實力稱霸西南,重慶通風采光天窗請認準重慶麥克威,想了解更多請訪問重慶麥克威天窗網站(www.thunderone.cn)或者撥打重慶麥克威客服熱線:028-82630900。

MCW5型通風天窗(暗扣式)
MCW7型通風天窗(箱型骨架式)
C1XT三角形電動采光排煙天窗(下開式)
TC5型流線型通風天窗