設計屋頂自然通風天窗圖集的時候或者設計人員討論到建筑圖集和結構圖集的時候,很多人都會迷茫,建筑圖集和結構圖集到底有什么區別呢?下面我們就一起來了解一下吧。
1、建筑圖集
建筑施工圖集是根據正投影的原理和相關的專業知識繪制的工程圖樣,其主要在于表現生產車間廠房的內外形狀、平面布置、樓層層高及建筑構造、室內做法等,簡稱“建施”,它是各類施工圖的基礎和先導,也是指導土建施工的主要依據之一。
建筑施工圖集主要用來作為施工放線、砌筑基礎及墻身、鋪設樓板、樓梯、屋頂、安裝通風設備、廠房室內布置及編制預算和施工組織計劃等的依據。其基本圖集包括施工總說明、總平面圖、建筑平面圖、建筑立面圖、建筑剖面圖、建筑詳圖和通風設備圖等。
2、結構圖集
結構施工圖集是關于承重構件的布置、使用的工業廠房的材料、廠房屋頂重構件的形狀、重構件的大小及生產車間內部夠早的工程圖樣,是承重構件及其他受力構件施工的依據。
結構施工圖集包含結構總說明、基礎布置圖、承臺配筋圖、地梁布置圖、各層柱布置圖、各層柱布筋圖、各層梁布筋圖、屋面梁配筋圖、樓梯屋面梁配筋圖、各層板配筋圖、屋面板配筋圖、樓梯大樣及節點大樣等內容。
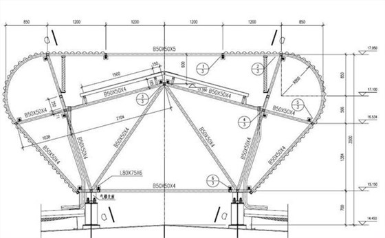
作為設計圖集圖紙的朋友清楚了嗎,當然,建筑圖集和結構圖集的區別里還有很多知識需要學習,麥克威通風作為11CJ33《通風采光天窗》的主編單位,對于建筑圖集的設計、制造擁有超高的專業技術水平。
歡迎通風天窗行業的朋友訪問麥克威通風網站(www.thunderone.cn)免費下載11CJ33通風采光天窗標準建筑圖集電子版PDF版本和CAD版本。

MCW5型通風天窗(暗扣式)
MCW7型通風天窗(箱型骨架式)
C1XT三角形電動采光排煙天窗(下開式)
TC5型流線型通風天窗